Interpretation Center Andautonija

Location: Šćitarjevo, HR

Area: 760 m²

Year: 2016 building permit

Client: City Velika Gorica

Type: Public&Heritage

Interpretation Center Andautonija
Interpretation Center Andautonija

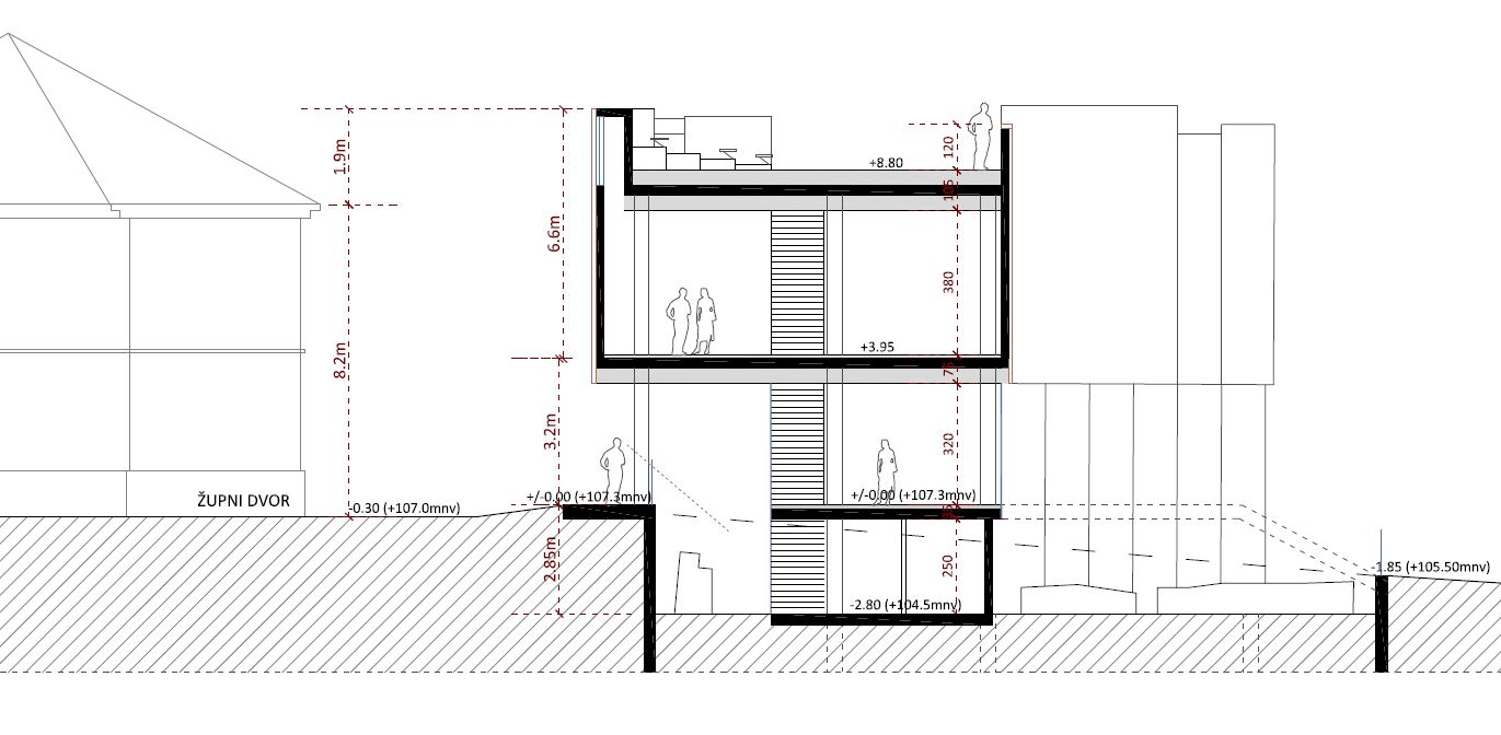
The subject of the project is the Interpretation Center of the Archaeological Park of Andautonia. The building is overlooked on extremely valuable location, on the archeological site of the Roman city of Andautonia in the center of Šćitarjevo.

The subject of the project is the Interpretation Center of the Archaeological Park of Andautonia. The building is overlooked on extremely valuable location, on the archeological site of the Roman city of Andautonia in the center of Šćitarjevo.

Interpretation Center Andautonija
Interpretation Center Andautonija

Interpretation Center Andautonija
Interpretation Center Andautonija

Nearby are the Museum of Scents, the parish court and the church, which is a strong landmark in the area. The context is characterized by the disunity and dispersion of content and great archaeological value. The project is needed to achieve the emphasis on the value of minimal interventions in space, create a new landmark in the space and a recognizable, clear and adequate space for receiving visitors.

Nearby are the Museum of Scents, the parish court and the church, which is a strong landmark in the area. The context is characterized by the disunity and dispersion of content and great archaeological value. The project is needed to achieve the emphasis on the value of minimal interventions in space, create a new landmark in the space and a recognizable, clear and adequate space for receiving visitors.

Interpretation Center Andautonija
Interpretation Center Andautonija

Interpretation Center Andautonija
Interpretation Center Andautonija

The priority of the building concept is to emphasize the value of the location. Architecture is therefore in service archeology, there is an interest and intrigue of the visitor, and the other side is unobtrusive in the opinion that not planted the reason for its accommodation, that is, it is located in an ancient Roman city.

The priority of the building concept is to emphasize the value of the location. Architecture is therefore in service archeology, there is an interest and intrigue of the visitor, and the other side is unobtrusive in the opinion that not planted the reason for its accommodation, that is, it is located in an ancient Roman city.